Qeydiyyatdan keç
Sayta daxil ol

Скриншот к товару: P022
Layihə № P022
👁 Ümumi baxış: 5182 [11]
📅 Aylıq baxış: 56 [3]
[1]
📐
Tikilialtı sahə
163.44 m²
🏠
Ümumi sahə
476.64 m²
📏
Ölçülər
14.4 m x 12 m
💰
Layihənin qiyməti
1 900 1 400

3D MODELİ GÖSTƏR
3D model yüklənir...


Xüsusiyyətlər Rəyini bildir! Necə sifariş edək?

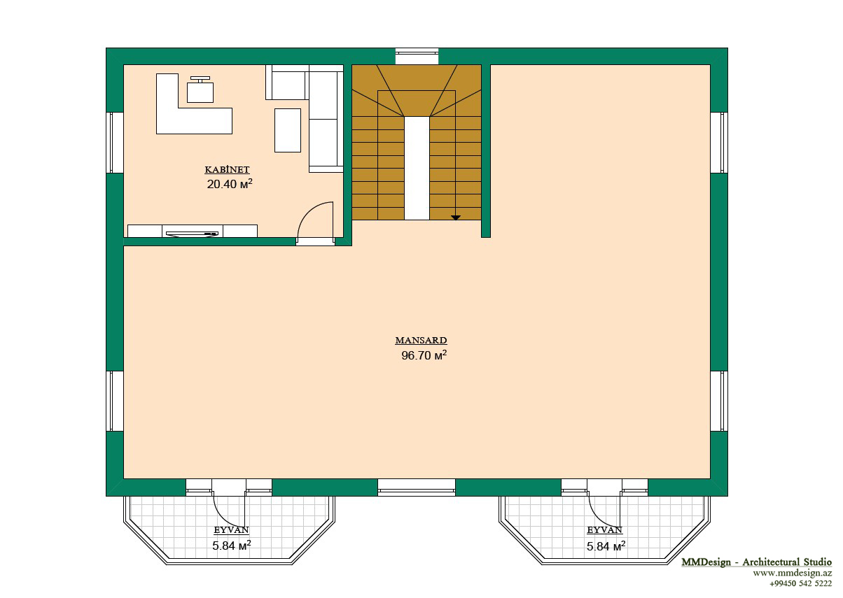
MANSARDIN PLANI
2-Cİ MƏRTƏBƏNİN PLANI
1-Cİ MƏRTƏBƏNİN PLANI

Layihəni sifariş etmək üçün əlaqə
Layihənin "Memarlıq Planlaşdırma Bölməsi" müvafiq İcra Hakimiyyəti orqanına təqdim edilməsi üçün lisenziya ilə verilir.
Layihədə dəyişikliyə ehtiyac yaranmadığı təqdirdə 2 iş günü müddətində hazırlanaraq sifarişçiyə tam paket halında təqdim olunur.
Layihədə sifarişçinin tələblərinə uyğun hər-hansı dəyişiklik zərurəti yaranarsa dəyişikliyin həcmindən asılı olaraq 5-15 iş günü müddətində hazırlanaraq tam paket halında təqdim olunur.
Tikintiyə icazənin alınması üçün layihənin "e-tikinti" online portalına yüklənməsinə tərəfimizdən dəstək göstərilir.

P022 №-li layihənin əsas xüsusiyyətləri
Tikili altı sahə 163.44 m²
Mərtəbələrin sayı 3
Otaqların sayı 7
Zirzəmi Olmasın
Mansard Olsun
Yaşayış sahəsi 276.37 m²
Köməkçi sahə 89.25 m²
Terras / Eyvan 42.31 m²
Hündürlük 11.8 m
Tikilinin ölçüsü en. 14.4 m x uz. 12 m
Ümumi sahə / İstifadə olunan 476.64 m² / 365.62 m²
Layihənin qiyməti
Digər məlumatlar
Memarlıq üslubu Art Deko
Layihənin müəllifi / memar Mübariz Məmmədov
MMDesign
@_mmdesign_
Instagram-da izlə

[/not-allow]